
A chalk art event on Saturday will promote a proposal to build a downtown area that could include apartments and condominiums, restaurants and stores, and green space and an outdoor performance space at Wilson Street on the north side of Main Street Oak Ridge.
The chalk art event is scheduled from 9 a.m. to 3 p.m. Saturday, May 23. It will feature 15 professional artists, the City of Oak Ridge said in a press release.
It’s called “Paint the Town with Chalk,” and it will help people visualize what the downtown area could be like, the press release said.
Oak Ridge was built to help make the world’s first atomic bombs as part of the top-secret Manhattan Project during World War II, and officials say the city was built without a distinct downtown for national security reasons. Now, they are trying to change that.
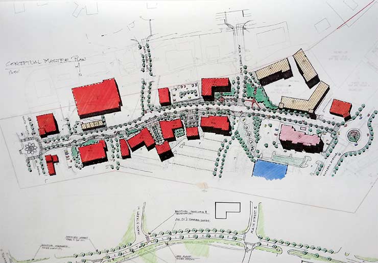
The goal is to transform the Wilson Street area into the city’s new downtown, according to a presentation last fall by Oak Ridge Community Development Director Wayne Blasius.
The downtown area could include:
- mixed-use development (retailers, restaurants, residences, and offices);
- multi-story buildings, with parking on the street or under or behind buildings—rather than between the buildings and street;
- luxury condominiums and high-density apartments;
- eating and drinking places, and unique stores;
- an outdoor performance area that could feature large and small acts;
- landscaping, sidewalks, and street furniture;
- trees along the street and occasional green spaces for events, dining, and gathering;
- a wide green space along the south side of Wilson Street that would provide shade and have a bicycle and pedestrian path; and
- pedestrian connections to Main Street Oak Ridge, Alvin K. Bissell Park, and nearby neighborhoods and retailers.
There have been plans that have suggested a downtown area, including the 1998 Comprehensive Plan, the 2000 City Center Plan, various mall redevelopment plans, the 2019 City Blueprint plan, and amendments last year to the Main Street Oak Ridge plan.
In his presentation, Blasius said property along the Wilson Street corridor could be worth much more per acre in a high-density, mixed-use configuration. That would make the tax base stronger and more sustainable, Blasius said.
He said the city doesn’t currently have a high-density mixed-use area, and some types of developments will only locate in a place like that.
Estimated tax revenues during a five-year period from residential units for sale and for rent, and from dining and entertainment businesses, could total about $5 million, according to Blasius’ presentation.
City officials say the downtown area could help with recruitment, especially as the city continues to try to attract new residents.
“Our federal employers report that their recruiting efforts are hamstrung by (a) lack of urban housing in a walkable environment, sometimes leading the brightest candidates to gravitate to more dynamic cities also offering them great science jobs,” Blasuis’ presentation said.
The idea of building a downtown area along Wilson Street has been discussed since the site plan for Main Street Oak Ridge was revised last year, shifting the proposed mixed-use development area north to Wilson Street.
To help with the project, the city received a grant from the Tennessee Department of Transportation to hire a consulting team, Noell Consulting Group of Atlanta, that helped develop land use ideas. Traffic engineers at AECOM analyzed the potential impacts of the development. An urban design team was involved as well.
After the land uses and roadway guidelines were developed, the urban design team examined Wilson Street during a three-day design exercise and generated what they called “realistic market- and engineering-based illustrations for how it can be re-imagined as ‘Downtown Oak Ridge.'”
Conceptual plans, diagrams, and renderings have been drafted, but no specific development proposals or developers have been announced yet.

During the recent City Blueprint process, residents emphasized the importance of being uniquely Oak Ridge, and the new downtown plan could help “brand” downtown Oak Ridge with unique icons. Among the ideas that have been proposed are crosswalks painted like DNA strands, piano keys, or the periodic table; intersection graphics that feature an atom or oak leaf; sculptures of famous scientists or other Oak Ridgers; or depictions of the blueprint values: science, nature, and education.
During Saturday’s event, spectators will be able to vote on the chalk art for the TN Bank People’s Choice Award. There will be a Best in Show prize given to the drawing that best depicts the vision of Main Street. That prize is being donated by Oak Ridge City Council member Jim Dodson, the press release said.
COVID-19 precautions should be taken to help keep everyone safe and healthy, the press release said. Spectators can walk or drive by as the artists complete their drawings. People are asked to practice social distancing, and they are encouraged to wear masks when walking through.

You can participate in the event. In the week leading up to “Paint the Town with Chalk,” you and your family can get a pack of chalk and turn a section of your driveway or sidewalk into a vision of what you would like to see in a vibrant downtown area, the press release said.
“Maybe it is a farmers market, a street musician, a bakery with amazing cupcakes, or a local book store,” the press release said. “Let your imagination run wild!”
Then, take a picture of your art and post it to the Explore Oak Ridge pages on Facebook or Instagram and tag the picture #paintthetownor. You can also email it to Explore Oak Ridge at katy@oakridgevisitor.com. Explore Oak Ridge will post the pictures to the Paint the Town website page, and the one with the most votes will receive a $100 prize for the Community Spirit Award sponsored by Oak Ridge Pharmacy. All entries must be submitted by Wednesday, May 20, and voting will take place until 4 p.m. on May 23.
Sponsors of the event include the City of Oak Ridge, Explore Oak Ridge, TN Bank, and Oak Ridge Pharmacy.















Leave a Reply